IT Enterprise - шаблон joomla Окна

      Доброго времени суток, уважаемые читатели! В этой статье пойдет речь о двигателях Renault Premium DCI, а точнее о топливной системе Рено Премиум, так называемой Common Rail (единая рейка).

Renault Premium DCI

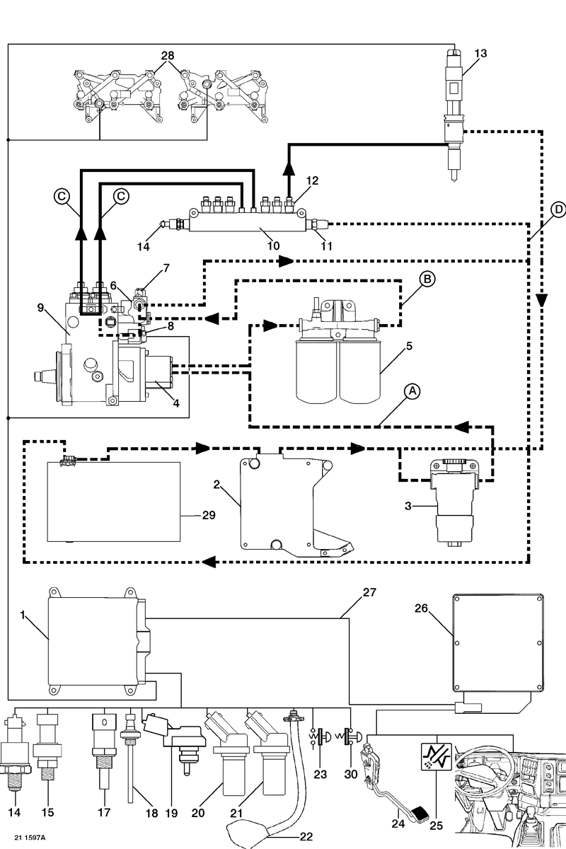
Расположение составных элементов на автомобиле:

Контур всасывания топлива

- Охладитель ЭВ (1)

- Трубопровод всасывания и возврата утечки с топливных распылителей

- Насос подкачки и фильтр грубой очистки топлива (3)

- Возвратный трубопровод с общего коллектора (4)

Контур низкого давления (подпитки топливом)

- Подкачивающий насос подпитки топливом (5)

- Низконапорный трубопровод (6)

- Топливный(ые) фильтр(ы) (7)

- Продувочный клапан (8)

- Топливодозирующая камера (9)

Контур высокого давления

- Высоконапорный насос (т.н.в.д.) (10)

- Пучок трубопроводов подающих топливо в общий коллектор (11)

- Общий коллектор (12)

- Ограничитель давления в общем коллекторе (13)

- Ограничители расхода (14)

- Комплект трубок к топливным распылителям (15)

- Трубки подачи топлива в головку цилиндр-блока (16)

- Электроклапан контроля впрыском топлива (9220 / 9221 / 9222 / 9223 / 9224 / 9225)

Электрические компоненты

- Электронный вычислительный блок, контролирующий двигателем (EECU) (9202)

- Электроклапан цилиндра n° 1 на высоконапорном насосе (9213)

- Электроклапан цилиндра n° 2 на высоконапорном насосе (9212)

- Датчик высокого давления топлива (9208)

- Датчик моторного режима на рулевом маховике (9228)

- Датчик режима т.н.в.д. (впрыска или высокого давления) (9262)

- Датчик температуры в контуре охлаждающей системы двигателя (7362)

- Датчик температуры моторного масла (9226)

- Датчик температуры и давления наддувочного воздуха (9200)

- Датчик уровня моторного масла (8275)

- Привод отключения двигателя (при опрокидывании кабины) (2266)*

- Датчик давления масла (7368)

- Датчик засорения топливного фильтра (2400) (18)

- Моторная электроарматура (17)

Компоненты остальных вспомогательных функций

- Отключаемый вентилятор (8228)*

- Электроклапан замедлителя на выхлопе (8150)

- Электроклапан n° 1 моторного тормоза "J" (7940)

- Электроклапан n° 2 моторного тормоза "J" (7941)

- Автомобильный вычислительный блок (VECU) (9201)

- Диагностическая штепсельная розетка (7519)

Водительский интерфейс

- Педаль акселератора (5266)

- Приводы под рулём (регулятор скорости) (6167)

- Сигнализатор опасности ("DANGER") с наставлением немедленного останова (7521)

- Сигнализатор необходимости технического обслуживания ("SERVICE") (7522)

- Сигнализатор дефекта в электронном составе двигателя (9267)

- Сигнализатор дефекта в электронной составе автомобиля (9268)

      Топливо всасывается с помощью подкачивающей секции в ТНВД, из топливного бака автомобиля. Далее оно проходит через фильтр - сепаратор грубой очистки и фильтр тонкой очистки. После чего попадает в насос, а точнее в секцию высокого давления. Там же установлен ограничитель топлива, который в зависимости от потребности двигателя, регулирует давление в рейке. Из рейки уходит 6 трубок по одной на каждую форсунку цилиндра. Всем процессом руководит электронный блок управления двигателем. Операясь на показания датчиков.